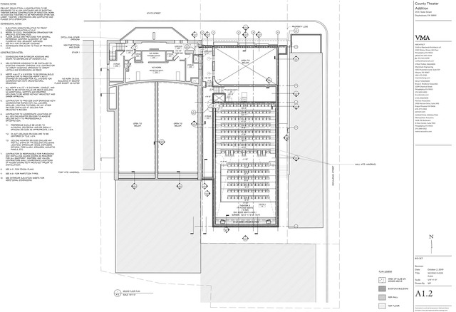
County Theater

20 E. State Street,
Doylestown, PA 18901

Unfavorite 10 people favorited this theater

Uploaded By

Tiny ridethectrain

More Photos of This Theater

Photo Info

Uploaded on: July 28, 2025

Size: 477.6 KB

Views: 356

License:

County Theater

Unfavorite No one has favorited this photo yet

You must login before making a comment.

New Comment